Votre titre va ici
Your content goes here. Edit or remove this text inline or in the module Content settings. You can also style every aspect of this content in the module Design settings and even apply custom CSS to this text in the module Advanced settings.
Votre titre va ici
Your content goes here. Edit or remove this text inline or in the module Content settings. You can also style every aspect of this content in the module Design settings and even apply custom CSS to this text in the module Advanced settings.
Agenda
Aucun résultat
La page demandée est introuvable. Essayez d'affiner votre recherche ou utilisez le panneau de navigation ci-dessus pour localiser l'article.
Location
Soutenez le FC Coeuve
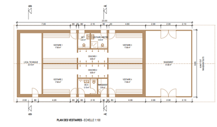
Projet nouveaux vestaires
Le projet a été imaginé le plus raisonnablement possible. Il comprend quatre vestiaires pour les équipes et deux douches, ainsi qu’un vestiaire d’arbitre et des sanitaires pour le public. Il est également prévu un grand local technique (installations chauffage, sanitaires, électricité et ballons pour les équipes) et un local de rangement non chauffé pour le matériel du club.
Comité Sponsoring projet vestiaire |
|
| Membre | Quentin Frossard |
| Membre | Thomas Plumey |
| Membre | Bernard Brahier |
| Membre | Didier Brahier |
| Membre | Pauline Frossard |
Commission construction projet vestiaire: |
|
| Membre | Thomas Plumey |
| Membre | Quentin Frossard |
| Membre | Joel Juillerat |
| Membre | Serge Heusler |
| Membre | Théo Choffat |
| Membre | Christophe Clerc |
| Membre | Juanito Iglesias |





